| Instal·lació 
                  de Protecció. Terres. Esquema general |  | 
               
                | a)Instal·lant 
                    al fons de les rases de cementació dels edificis, un 
                    cable rígid de coure nu de una secció mínima 
                    de 35 mm2, o un cable d’acer galvanitzat de 95 mm2, 
                    creant un anell tancat en tot el perímetre de l’edifici. b) 
                    Situant al pati de llum o en jardins particulars de l’edifici 
                    un o varis elèctrodes de característiques adequades. 
                     A 
                    aquesta pressa de terra es connectarà tot el sistema 
                    de tubs metàl·lics accessibles, destinats a 
                    la conducció, distribució i desguàs d’aigua 
                    o gas de l’edifici; tota massa metàl·lica 
                    important existent en la zona de la instal·lació, 
                    i les masses metàl·liques accessibles dels aparells 
                    receptors, quan la seva classe d’aïllament o condicions 
                    d’instal·lació ho demanin.  | En 
                    tota nova edificació s’establirà una pressa 
                    a terra de protecció, seguint un dels següents 
                    sistemes:  | 
               
                |  | 
               
                | 
                    
                       
                        | Elèctrode | Resistència 
                          de terra |   
                        | Placa 
                          enterrada |  |   
                        | Pica 
                          vertical |  |   
                        | Conductor 
                          enterrat horitzontalment |  |   
                        |  |  | = 
                          Resistivitat del terreny en W·m |   
                        |  | P | = 
                          Perímetre de la placa en m |   
                        |  | L | = 
                          Longitud de la pica o del conductor en m |  |  
                    Les 
                      fórmules del costat ens serviran per a fer un càlcul aproximat 
                      de la resistència de posada a terra d'un edifici.           Detalls 
                      constructius | 
               
                |  | 
               
                |  | 
               
                |  | Detalls 
                  constructius | 
               
                | Seccions 
                  dels conductors de posta a terra |  | 
               
                | Estarà 
                    formada per conductors de coure, de la mateixa secció que 
                    la instal·lada pels conductors de protecció, amb 
                    un mínim de 16 mm2 ( MIE BT 018). 
                    Cal tenir en compte que aquesta mai no podrà ser inferior 
                    a la secció de les seves derivacions. | Línia 
                    principal de terra | 
               
                | Totes 
                    les derivacions de la línia principal de terra s'instal·laran 
                    amb conductors de coure, essent la seva secció la 
                    indicada a continuació: | Derivacions 
                    de la línia principal de terra | 
               
                | 
                     
                      | Secció 
                          dels conductors de fase o polars de la instal·lació 
                          (mm2 ) | Secció 
                          mínima de la derivació de la línia principal de terra 
                          (mm2 ) |   
                      | S <= 16 16 < S <= 35
 S > 35
 | S ( * ) 16
 S/2
 |  |  | 
               
                |  
                    2,5 
                      mm2, si els conductors de protecció no formen 
                      part de la canalització d'alimentació i tenen una protecció 
                      mecànica. | (*) 
                    Amb un mínim de: | 
               
                |  
                    4 
                      mm2, si els conductors de protecció no formen 
                      part de la canalització d'alimentació i no tenen una protecció 
                      mecànica. |  | 
               
                | La 
                  seva secció serà, com a mínim, de 35 mm2 . 
                  Els conductors seran de coure i en cap cas la seva secció no 
                  serà inferior a la secció de la línia principal de terra a la 
                  qual es connecta. | Línies 
                  d'enllaç amb terra | 
               
                | 
                    
                       
                        | Tipus 
                          de terreny | Resistivitat 
                          en W · m |   
                        | Terrenys 
                          pantanosos | d'algunes 
                          unitats a 30 |   
                        | Llim | 20 
                          a 100 |   
                        | Humus | 10 
                          a 150 |   
                        | Torba 
                          humida | 5 
                          a 100 |   
                        | Argila 
                          plàstica | 50 |   
                        | Margues 
                          i argiles compactes | 100 
                          a 200 |   
                        | Margues 
                          del juràssic | 30 
                          a 40 |   
                        | Sorra 
                          argilosa | 50 
                          a 500 |   
                        | Sorra 
                          silícia | 200 
                          a 300 |   
                        | Terra 
                          pedregós cobert de gespa | 300 
                          a 500 |   
                        | Terra 
                          pedregós nu | 1500 
                          a 3000 |   
                        | Calcàries 
                          toves | 100 
                          a 300 |   
                        | Calcàries 
                          compactes | 1000 
                          a 5000 |   
                        | Calcàries 
                          esquerdades | 500 
                          a 1000 |   
                        | Pissarres | 50 
                          a 300 |   
                        | Roques 
                          de mica i quars | 800 |   
                        | Granits 
                          i gresos procedents d'alteració | 1500 
                          a 10000 |   
                        | Granits 
                          i gresos molt alterats. | 100 
                          a 600 |  | Resistivitat 
                    aproximada dels diferents tipus de terrenys. | 
               
                |  |  | 
               
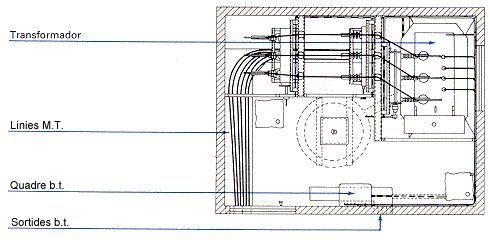
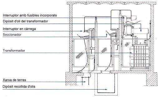
                | Transformadors |  | 
               
                | Seran 
                    les empreses distribuïdores d'energia elèctrica les que determinaran 
                    la necessitat d'instal·lar un centre de transformació 
                    quan així ho determini la previsió de càrregues. D'acord 
                    amb el vigent R.E.B.T.,                     quan es construeixi un local, un edifici o una agrupació d'edificis, 
                    la previsió de càrregues dels quals sobrepassi els 50 kVA 
                    o quan la demanda de potència d'un nou subministrament sigui 
                    superior a aquesta xifra, la propietat de l'immoble haurà 
                    de reservar un local destinat al muntatge de la instal·lació 
                    d'un Centre de Transformació; la seva situació a l'immoble 
                    ha de correspondre a les característiques de la xarxa de subministrament 
                    aèria o subterrània, s'ha de poder adaptar al compliment de 
                    les condicions imposades pel reglament sobre condicions tècniques 
                    i garanties de seguretat en centrals elèctriques, subestacions 
                    i centres de transformació i ha de tenir les dimensions necessàries 
                    per muntar-hi els equips i els aparells requerits per donar 
                    el subministrament d'energia previsible. El 
                    local, que ha de ser de fàcil i lliure accés, es destinarà 
                    exclusivament a la finalitat prevista. | Per 
                    què cal instal·lar un transformador en un edifici 
                    d'habitatges? 
                    La 
                      missió d'un centre de transformació és passar 
                      de la tensió de distribució (25,11, 6 kV) a la d'utilització 
                      400-230 V.   | 
               
                | Cada 
                    cas serà objecte d'estudi. Però com a orientació, 
                    s'hauran de preveure, segons la tensió de distribució en M.T. 
                    i les potències previstes, les superfícies i les altures següents: | Quin 
                    espai caldrà preveuré? | 
               
                | 
                    
                       
                        | Potència prevista
 kW
 | Superfície 
                          lliure1 m2
 | Altura 
                          lliure2 m
 |   
                        | kV | kV |   
                        | PER 
                          A U <= 10
 | PER 
                          A 10 < U <= 20
 | PER 
                          A 20 < U <= 30
 | PER 
                          A U <= 10
 | PER 
                          A 10 < U <= 20
 | PER 
                          A 20 < U <= 30
 |   
                        | Fins 
                          a 500 | 4,00 
                          x 4,00 | 4,00 
                          x 5,00 | 4,50 
                          x 6,00 | 3,00 | 3,50 | 4,00 |   
                        | De 
                          500 a 1.000 | 4,00 
                          x 5,00 | 4,00 
                          x 6,00 | 4,50 
                          x 7,00 | 3,00 | 3,50 | 4,00 |   
                        | Més 
                          de 1.000 | Cal 
                          determinar-ho en cada cas |   
                        |  |  | 1.- 
                          Superfície sense pilars, columnes, etc. 2.- Altura entre pis acabat i sostre o penjants si n'hi 
                          hagués
 |  | 
               
                |  | 
               
                |  | 
               
                | (Recomanació 
                    UNESA 5201 C). 
                    Dimensions màximes dels transformadors de distribució. | Dimensions 
                  dels transformadors | 
               
                | 
                    
                       
                        | Potència 
                          nominal ( kVA)
 | Longitud | Amplada | Altura |   
                        | Fins 
                          a 24 kV (cm)
 | Per 
                          a 36 kV (cm)
 | Fins 
                          a 24 kV (cm)
 | Per 
                          a 36 kV (cm)
 | Fins 
                          a 24 kV (cm)
 | Per 
                          a 36 kV (cm)
 |   
                        | Fins 
                          a 100 | 110 | 110 | 74 | 78 | 149 | 162 |   
                        | Fins 
                          a 160 | 114 | 124 | 83 | 85 | 150 | 170 |   
                        | Fins 
                          a 250 | 130 | 135 | 91 | 98 | 162 | 182 |   
                        | Fins 
                          a 400 | 160 | 162 | 102 | 105 | 175 | 190 |   
                        | Fins 
                          a 630 | 160 | 185 | 110 | 115 | 187 | 200 |   
                        | Fins 
                          a 1000 | 199 | 205 | 119 | 120 | 208 | 219 |  | 
               
                |  | 
               
                | (Recomanació 
                    UNESA 5201 C). Pes màxim dels transformadors, segons 
                    la seva potència i el líquid aïllant utilitzat  | Pes 
                    dels transformadors | 
               
                | 
                    
                       
                        | Potència 
                          nominal | PESOS |   
                        | amb 
                          oli mineral | amb 
                          líquid aïllant sintètic |   
                        | Fins 
                          a 24 kV (kg)
 | Per 
                          a 36 kV (kg)
 | Fins 
                          a 24 kV (kg)
 | Per 
                          a 36 kV (kg)
 |   
                        | Fins 
                          a 100 kVA | 790 | 950 | 910 | 1.100 |   
                        | Fins 
                          a 160 kVA | 1.050 | 1.200 | 1.200 | 1.400 |   
                        | Fins 
                          a 250 kVA | 1.400 | 1.600 | 1.600 | 1.850 |   
                        | Fins 
                          a 400 kVA | 1.750 | 2.000 | 2.000 | 2.350 |   
                        | Fins 
                          a 630 kVA | 2.400 | 2.700 | 2.750 | 3.150 |   
                        | Fins 
                          a 1000 kVA | 3.400 | 3.800 | 3.900 | 4.450 |  | 
               
                |  |  |