ARQUITECTURA ROMANA

 

 2. características de la arquitectura romana la cultura romana


4. els ordres arquitectònics l'ordre dòric
3. Edificaciones romanas (VI)
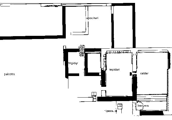
LAS TERMAS

 Eren los baños públicos. La gente iba a las termas por higiene, para hacer ejercicios gimnásticos y para relacionarse socialmente

Unas termas acostumbraban a tener:

- el apoditeri o vestidor

- el frigidari o sala de agua fría

- el caldari o zona de baños calientes

- el tepidari sala de agua templada

-l’hipocaust lugar de distribución de aire caliente