insmontsacopa
       
Riscos Laborals
 
Pla d'emergència de l'Institut Montsacopa
Guia per portar a terme l'evacuació del centre
 
 
Pànol punt de reunió
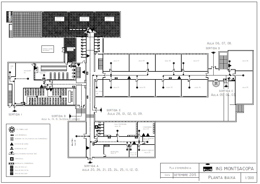
Plànol planta baixa
Plànol planta primera
Plànol gimnàs
Aula de pràctiques
Aula pista
 
 
Resum simulacres d'evacuació

resultats

abans 2011

 
 
 
   Exemple d'evacuació

Una evacuació ordenada evita els accidents afegits pel pànic i les presses. Saber què cal fer per procedir amb seguretat és primordial en una evacuació, i és per això es fan els simulacres d'emergència. Una escola de primària ens mostra les mesures que cal prendre i els passos a seguir per aconseguir una evacuació ordenada.


   

 





 
 
Inici de pàgina