| El Modernisme al Baix Llobregat |
![]() |
|
Itineraris
|
|
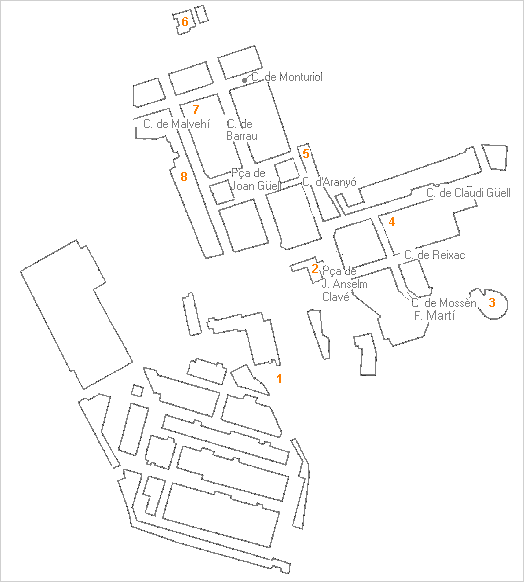
Els nuclis més importants d'arquitectura modernista a la comarca són la Colònia Güell i Sant Joan Despí. Per aquest motiu es proposa un itinerari per cada una d'aquestes poblacions. La Colònia Güell té dues parts interessants per visitar: el recinte industrial i la part residencial. En entrar a la colònia, a mà esquerra, trobem els diferents tipus d'edificis industrials on es realitzaven els diversos processos per a la producció del teixit. Tipològicament els edificis més interessants són el de pisos, on es transformava el cotó en fil, el de dents de serra, on es teixia la roba, i els assecadors, on s'eixugava la roba un cop tenyida, els quals són particularment interessants per la disposició dels maons. Un cop visitada la fàbrica ens endinsarem a la part residencial on podrem observar el primer edifici que trobem, Ca l'Ordal, una cosa construïda com habitatge dels pagesos de la colònia que és interessant per les filigranes del maó. Després pujarem pel carrer Reixac i trobarem l'edifici més admirat de la colònia, la cripta d'Antoni Gaudí del qual tant l'exterior com l'interior són molt singulars. Continuarem la ruta fins a la Cooperativa de Consum al carrer Claudi Güell, on el maó també és el protagonista. Tot seguit passarem per l'antic Centre Parroquial de Sant Lluís, que segueix també l'estètica modernista, i arribarem a l'Escola i Casa del Mestre, units per un pont. Seguirem la ruta passant per Ca l'Espinal on destaca una tribuna construïda aprofitant la ubicació de l'edifici en cantonada. Tornarem al punt inicial de la visita passant pel carrer Malvehí, on trobarem el conjunt més interessant de cases dels antics obrers de la fàbrica. Pel que fa a Sant Joan Despí, hi trobem també un patrimoni destacable, obra de l'arquitecte Jujol. El primer edifici arquitectònicament interessant i el primer que Jujol va realitzar a la població és la Torre de la Creu, molt curiós per les cúpules que el coronen. També és mereixedor d'una visita Can Negre, tant a l'exterior com a l'interior. Molt a prop d'aquí trobem altres tres cases remarcables, la Torre Serra Xaus, la Torre Jujol i la Casa Rovira, tant per la seva estructura arquitectònica com pels seus esgrafiats. Dels altres edificis de la població en què va intervenir Jujol són sobretot destacables els seus esgrafiats. Els més significatius són els angelets de la casa número 4 del carrer Frederic Cases i el Sant Antoni de la casa núm. 26 del carrer Catalunya. No cal oblidar la decoració interior de l'església parroquial i la fàbrica de cartró als afores del poble. Itinerari per Sant Joan Despí ![]() ![]() 1 Torre de la Creu (1913-1916) -- 2 Can Negre (1915-1930) -- 3 Torre Jujol (1932) -- 4 Torre Serra Xaus (1921) -- 5 Casa Rovira (1926) -- 6 Casa del Carrer Catalunya, 26 (1929) -- 7 Casa del Carrer F. Cases, 4 (1931) Itinerari de la Colònia Güell ![]() ![]() 1 Fàbrica -- 2 Ca l'Ordal -- 3 Cripta -- 4 Cooperativa de Consum -- 5 Centre Parroquial Sant Lluís -- 6 Escola i Casa del Mestre -- 7 Ca l'Espinal -- 8 Cases dels Obrers |
![]() |
![]() |
|
Col·lecció Descobrim el Baix Llobregat, núm.1 |
|