
|
Conèixer i calcular àrees és part de la nostra realitat.
El pis més econòmic
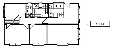
Per representar plantes de pisos s'utilitzen plànols. Observa el plànol següent.

- Els nostres amics volen que la construcció sigui el més econòmica possible. Això s'aconsegueix si la longitud total de les parets és la mínima possible. Per tal de resoldre el problema, els amics decideixen fer un model de rectangles en petit amb diferents formes que tinguin 64 unitats de superfície. Fes-ho i digues quin és millor.
| costat A |
1 |
2 |
4 |
8 |
10 |
16 |
20 |
32 |
| costat B |
64 |
|
|
|
|
|
3,2 |
|
| perímetre |
|
|
|
|
|
|
|
|
- Se'ls acudeix la figura següent. Mesura-la en centímetres per veure si és cert que estalviem alguna cosa.
Fes altres formes i comprova-ho.
|